Le Tailleur
– Réhabilitation d’un immeuble de bureaux en site occupé

Programme

Bureaux

Lieu

Paris 9

Surface

2 700 m²

Coût des travaux

NC

Mission

Complète

Maîtrise d'ouvrage

Herrmann Immeubles

AMO

Ikory Project Services

Équipe

MADA (architecte mandataire) / MO Solutions / LLPS

Statut

Études en cours (DCE) - Livraison 2026

Démarche environnementale

Décret Tertiaire (2050) / Réemploi

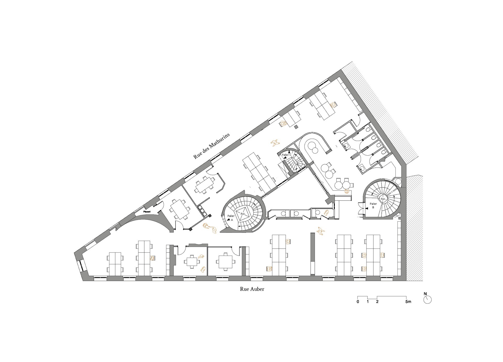
Le projet de réhabilitation de l’immeuble haussmannien situé au 12 rue Auber vise à redonner une nouvelle dynamique à cet espace de bureaux, tout en respectant son caractère historique et sa façade patrimoniale. Dans un contexte urbain dense et en site occupé, cette transformation répond à plusieurs enjeux stratégiques, techniques et esthétiques.

L’objectif principal de cette réhabilitation est de réunir différents lots pour améliorer la flexibilité et l’attractivité des espaces de travail tout en garantissant une cohérence architecturale. En optimisant les espaces par décloisonnement et en repensant les circulations, le projet permet l’augmentation de la capacité d’accueil tout en assurant un cadre de travail confortable et contemporain. Favorisant la lumière naturelle et une circulation fluide, le projet conserve les éléments d’origine qui font la spécificité et le charme de l’immeuble haussmannien.

Immeuble du 12 rue Auber

Afin de renforcer l’attractivité et l’identité de l’immeuble, les espaces communs sont redéfinis en accord avec la typologie haussmannienne. Les matériaux et éléments d’origine, tels que la verrière, les parquets anciens et la pierre sont restaurés ou mis en valeur pour souligner l’âme historique du lieu. En parallèle, des touches contemporaines viennent réveiller subtilement l’ensemble pour offrir un dialogue harmonieux entre tradition et modernité qui propulse l’immeuble de bureaux dans son temps.

La devanture dénaturée de l’immeuble est transformée dans le respect de l’héritage patrimonial de l’immeuble, offrant simultanément à l’immeuble une réponse fonctionnelle aux besoins d’augmentation du capacitaire et une identité prestigieuse en accord avec son adresse.

Taillée sur mesure, cette réhabilitation conjugue préservation du patrimoine, optimisation des espaces et mise aux normes pour garantir une attractivité renouvelée tout en respectant l’histoire de cet immeuble emblématique.

Façade rue Auber
Façade rue des Mathurins
Projet de réhabilitation du hall d'entrée
Rue Auber - 1909
Tailleur "High Life" au 12 rue Auber - 1909

logo MADA

  • Manufacture d’architecture
  • Projets
  • Index

17 bis rue la Boétie
75008 Paris
contact@mada.archi

Instagram LinkedIn