Beaumont
– Réhabilitation d’un immeuble de bureaux en site occupé

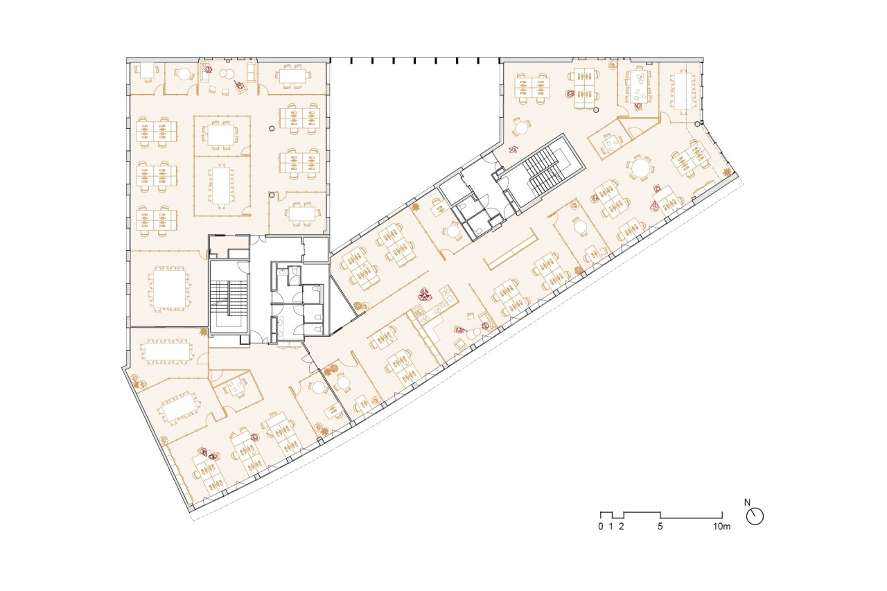
Programme

Bureaux & Salle polyvalente (ERP)

Lieu

Rennes

Surface

4 500 m²

Coût des travaux

2.6 M€ HT

Mission

Programmation + DIAG + Mission complète + Synthèse architecturale

Maîtrise d'ouvrage

Harmonie Mutuelle Foncière et Lieux de vie

AMO

Ikory Project Services

Équipe

MADA (architecte mandataire) / SoLab / ECO2L / Acoustibel

Statut

Études en cours (ESQ) - Livraison 2026

Démarche environnementale

Décret Tertiaire (2050) / Décret BACS / HQE Exploitation

logo MADA

  • Manufacture d’architecture
  • Projets
  • Index

17 bis rue la Boétie
75008 Paris
contact@mada.archi

Instagram LinkedIn